STUDIO VOLTAIRE, 2016-2017
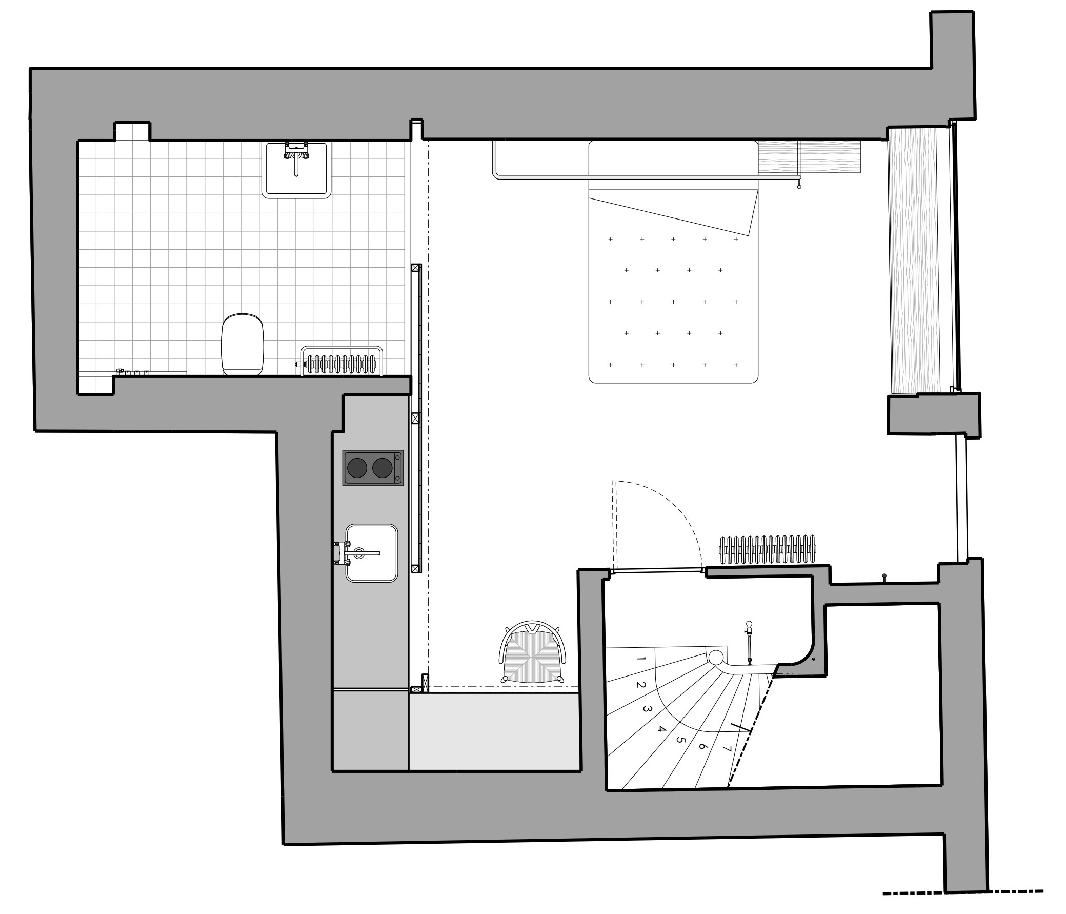
Aménagement d’un Studio
Adresse : rue Voltaire, Lille
Maître d’ouvrage : FC
Programme : habitation particulière
Année de construction : XIXe
Rénovation 2016 - 2017
Surfaces brutes du projet hors sol : 26M2
Montant global des travaux HTVA : NC
Lien vers le Dossier PDF
© photo : Paul Tahon
![]()
![]()
![]()
	Aménagement d’un Studio
Adresse : rue Voltaire, Lille
Maître d’ouvrage : FC
Programme : habitation particulière
Année de construction : XIXe
Rénovation 2016 - 2017
Surfaces brutes du projet hors sol : 26M2
Montant global des travaux HTVA : NC
Lien vers le Dossier PDF
© photo : Paul Tahon




 

